Parapetto/divisorio in tubolari tondi di acciaio inossidabile con finitura satinata .

Vai a Parapetti
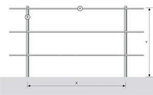
  A B X
mt
Y
mt
geos 20 Ø 20 Ø 48 1,50 1,10
geos 34
Ø 34 Ø 60 1,50 1,10

Si adatta a qualsiasi pendenza della pavimentazione. Può essere fornito non assemblato: il montaggio è semplice e rapido e non richiede manodopera e attrezzature speciali. Il fissaggio è sopra soletta, con flangia tasselli e viti. Disponibile anche un copriflangia di finitura. Altezza da pavimento: 110 cm.
Il numero degli elementi orizzontali può variare a seconda del progetto ed esigenze del cliente.
Tutti i particolari: tappi, staffe, bulloneria, sono in acciaio inox. Disponibile in Acciaio Inox AISI 304 e per zone marine in AISI 316.

/disegni tecnici/parapetti/geos_disegnotecnico.jpg

Sistema di assemblaggio e varianti di fissaggio

/Sistemi di fissaggio/particolare_assemblaggio_geos.jpg
/Sistemi di fissaggio/palo_tondo_con _flangia_.jpg
/Sistemi di fissaggio/palo_tondo_con _flangia_copripiastra.jpg